
概述
加湿机是冶金、矿山、建材、化工、电厂、锅炉等行业用以对粉尘和粉状物料加湿搅拌并输送至下一道处理程序,有效地防止粉尘和粉状物料在装卸运输过程中产生飞扬。
SJS型为双轴加湿机,DJS型为单轴加湿机,一般情况下,我公司推荐使用SJS双轴型。SJS、DJS型加湿机具有结构紧凑、调节方便、加湿均匀、维修简单、输送量大、耐磨性强等特点。
规格及性能参数
| 型号 |
SJS250 |
SJS350 |
SJS400 |
SJS500 |
| 生产能力m3/h |
15 |
30 |
50 |
80 |
| 最大槽长mm |
3000 |
4000 |
5000 |
5000 |
| 叶片回转直径mm |
250 |
350 |
400 |
500 |
| 输送方式 |
双轴桨叶式螺旋(搅拌)输送 |
| 轴中心距 |
200 |
280 |
320 |
400 |
| 电机功率kw |
7.5 |
11 |
15
|
22 |
| 速比i |
23-35 |
23-35 |
23-35 |
23-35 |
| 粉尘加湿后平均含水量% |
10 |
10 |
10 |
10 |
| 平均加水量t |
1.5 |
3
|
5 |
8 |
| 喷淋形式 |
雾状喷嘴 |
| 水压MPa |
0.4~0.6 |
DJS型单轴加湿机
| 型号 |
DJS250 |
DJS350 |
DJS400 |
DJS500 |
| 生产能力m3/h |
7 |
15
|
28 |
52
|
| 最大槽长mm |
4000
|
4000 |
5000 |
5000 |
| 叶片回转直径mm |
250 |
350 |
400 |
500 |
| 输送方式 |
桨叶螺旋加搅拌锤 |
| 电机功率kw |
2.2 |
4 |
7.5 |
11 |
| 速比i |
35 |
35 |
35 |
35 |
| 粉尘加湿后平均含水量% |
10 |
10 |
10 |
10 |
| 平均加水量t |
0.7 |
1.5 |
2.8 |
5.2 |
| 喷淋形式 |
雾状喷嘴 |
| 水压MPa |
0.4~0.6 |
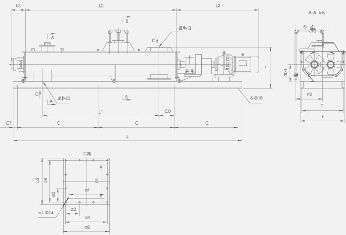
外形图

|