
概述
我公司生产的FGL-A、FGL-B、FGL、FG型水过滤器,引进国外先进技术、以其先进合理的结构形式、可靠听、高效的性能,在国内水过滤器应用场合独树一帜。本产品广泛适用于冶金、化工、轻纺、食品、电站等连续用水的场合;大、中型钢铁厂的冶铁、连铸、连轧等工艺流程中,更体现使用本产品的优越性和合理性。
产品结构特点
1、高强度低碳全不锈钢滤芯
滤芯是由粗、细精度双层滤网组成,通过二次过滤,确保用户对水质要求。特殊的过滤网结构,反冲洗时能顺利将杂质清除。
2、全自动的连续供水功能
本机不需要停机就可以自动进行反冲洗来清除杂质,保证了滤芯的正常工作,达到连续供给清水的目的。
3、自动识别滤网清洁度
因滤芯的清洁度下降,使进出口的水压达到设定压差时,自动开始反冲洗滤网及污水及时排出,恢复滤网的清洁度。
4、大过滤面积和过滤空间
本机罐体内空间均布若干个滤芯,过滤总面积为入口面积6-10倍,大过滤面积只需低频反冲,且压力损失很小。
5、体积小
由于本机是引进国外先进技术,充分利用了过滤空间,体积是砂滤器1/10。
6、可靠的反冲机构
本机的反冲吸盘是由高强度、高耐磨塑性材料制成,吸盘装在浊水腔中,滤芯装在清水腔中,用隔板分开,同时吸盘紧靠在不锈钢隔板上,因而反冲机构经久耐用。
7、全方位的清除杂质的功能
本机设有自动反冲洗功能,安装了高精度灵敏的差压控制器,监测进出腔的压力值,当两腔由于渣堵塞滤芯引起压力差达到设定值时,差压控制器输出电信号,启动反冲系统,将渣排出。本机使用一段时间后,对沉积罐底的固体物质,可通过本机下方手动球阀排出。当设备检修时,还可以打开罐体上的盲盖,人工进一步清除罐体内大型垃圾。
8、自动清洗功能
本机的反冲原理先进,即利用自身的水压进行冲洗,不需要另外配置压缩空气和反冲水系统。
9、滤芯更换简捷方便
滤芯安装在罐体上半部,只需在停机时打开上封壮举,即可拧动滤筒顶部六角头,方便地拆卸、清理或更换滤筒。
10、二种结构电器控制箱可供选择
A、采用通用的时间继电器控制。
B、采用PLC可变程序电脑控制。
11、经久耐用
本机内部结构采用不锈钢制造,耐腐蚀,使用寿命长。
技术参数
| 名称 |
单位 |
规格 |
备注 |
100
|
150 |
200 |
250 |
300 |
350 |
400 |
450 |
500
|
600 |
700
|
800 |
900 |
1000 |
| 流量 |
T/h |
100
|
150 |
200 |
350 |
500
|
800 |
1000
|
1200 |
1500 |
2000
|
3000 |
4000 |
5000 |
6000 |
|
| 过滤精度 |
mm |
0.05-12.0 |
|
| 介质 |
|
工业淡水 |
|
| 最大工作压力 |
MPa |
1.0-1.6 |
|
|
反冲洗起始
差压
|
MPa |
0.02-0.04 |
|
| 差压设定范围 |
MPa |
0.02-0.16 |
|
| 二次反冲洗间隔时间设定范围 |
h |
8-96 |
|
| 反冲洗时间设定范围 |
s |
0-180 |
|
| 反冲洗驱动电装型号 |
|
Q50A |
Q100A A.C 220V |
Q200A A.C 220V |
常州电站 |
| 反冲洗驱动电装功率 |
KW |
0.10 |
0.25 |
0.37 |
|
| 反冲洗排污球阀电装型号 |
|
Q25A A.C 220V |
Q50A A.C 220V |
Q100A A.C 220V |
常州电站 |
| 反冲洗排污球阀电装功率 |
KW |
0.05 |
0.1 |
0.25 |
|
|
差压控制器
型号
|
|
D520/7DD |
上海远东仪表厂(德国技术) |
| 压力损失 |
MPa |
0.02-0.04 |
|
| 反冲洗耗水量 |
T/次 |
1.8 |
2.9 |
6.4 |
|
| 总耗电量 |
KW |
0.2 |
0.4 |
0.67 |
|
| 工作方式 |
|
自动、手动 |
|
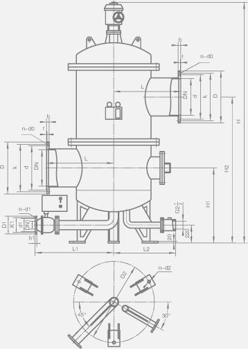
水过滤器外形图

|