产品与服务

产品中心

您当前的位置:首页 >> 重机、冶金产品系列 >> QSH输灰系统

 

 
QSH输灰系统


 加入时间:2019-12-12 13:52:36 

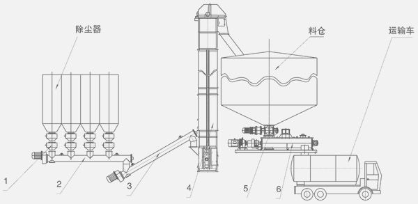
1.双层联锁阀;     2.集尘螺旋输送机;     3.转运螺旋输送机;

4.斗式提升机;     5.物料旋阀;               6.YJS加湿机.


 

注:1.双层联锁阀在除尘器里有气压的情况下使用,没有压力的时候除尘器可直接与集尘螺旋相接;

      2.在除尘器与料仓距离较短时,可不用转运螺旋,直接用集尘螺旋与斗提相接,在除尘器与料仓较远或工艺布置较复杂时,可用多根转运螺旋;

      3.根据需要,集尘螺旋及转运螺旋可用刮板输送机替代。


 

 

 

 


Copyright © 2019 江苏广能重工有限公司  苏ICP备15026302号