
工作原理、应用范围
LXSJ型洗石机是利用物料不同粒度和密度的颗粒在流体中具有不同的沉降速度,粒度细、密度小的颗粒沉降速度慢,而粒度大密度大的颗粒沉降速度快的特性,将粉尘和杂质与石子分离开来,并在螺旋叶片的均匀搅动下,达到滤水去杂、提升输送的目的。
洗石机广泛应用于建材、矿山、水利、水电、交通、混凝土搅拌站、冶金等行业的洗选、除杂等作业。
特点
◎清洗与提升输送同时进行,处理能力强。
◎出料含水量、含泥量低。
◎结构简单,体积较小,便于布置安装。
◎螺旋叶片采用耐磨耐冲击高铬铸铁制作,采用螺栓固定,易更换。
◎整机性能优越,使用寿命长,能耗低。
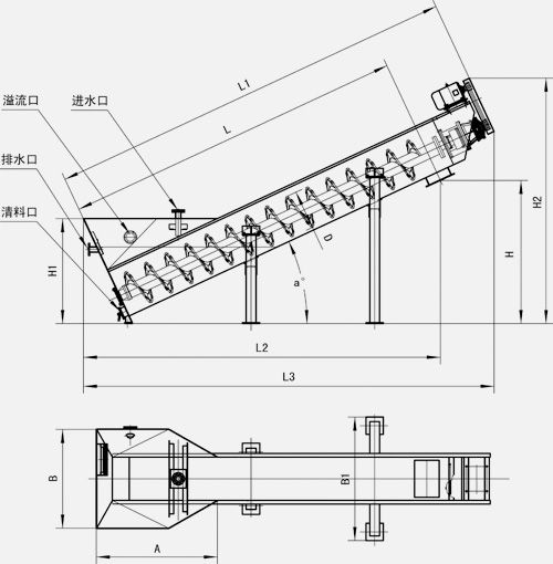
结构
洗石机由驱动装置、壳体、螺旋体、支架、清水泵、排污泵、电控箱等组成。根据不同工艺要求可增设相关设施。
主要技术参数
规格型号
|
LXSJ630
|
LXSJ750
|
LXSJ915
|
处理能力(t/h)
|
30~40
|
50~70
|
70~90
|
直径(mm)
|
630
|
750
|
915
|
转速(r/min)
|
12~18
|
12~18
|
10~15
|
主机功率(kw)
|
7.5~11
|
11~15
|
15~18.5
|
洗石粒度(mm)
|
10~20
|
10~20
|
10~25
|
耗水量(m3/h)
|
50
|
70
|
80
|
安装角度(°)
|
25 |
25 |
22
|
说明:清洗细石料订货前请注明粒度。
主机外形尺寸图

|