
用途
HS型刮板输送机是一种用于水平或倾斜布置输送粉状、粒状物料的机械产品。本产品设计合理、结构新颖、使用寿命长,运转可靠性高、节能高效、输送距离长、密封性能好且维修方便。已广泛用于冶金、建材、化工、火电、矿山等行业。
工作原理
散状物料颗粒间具有其内摩擦力,物料相对机壳又有外摩擦力,它在机槽内受到输送链在其运动方向的拉力,使其内部压力增加,颗粒之间的内摩擦力增大,在水平输送时,这种内摩擦力保证了料层之间的稳定状态,形成了连续的整体流动。当料层之间的内摩擦力大于物料与槽壁之间的外摩擦力时,物料就随着输送链一起向前运动,当料层高度与机槽宽度的比值满足一定条件时,料流是稳定的。而当料层低于刮板高度和料层高度不均匀时料流的整体性和稳定性被破坏,但此时物料是被刮板推送前进。
特点
1、HS型刮板输送机专用于磨琢性强、堆积比重大的粉状和小颗粒状物料的输送例如烧结矿粉、高炉粉尘等。
2、鉴于它的专用性,设计速度低,牵引力大,使用寿命长。
3、全密封的机壳无粉尘外泄,改善工作环境。
4、输送链采用合金钢材经先进的热处理手段加工而成,耐磨损、强度大。
5、驱动装置的安装采用背装式,(左装或右装)链传动,即方便安装又减少占地面积。
技术参数
| 项目 |
HS200 |
HS250 |
HS310 |
HS400 |
HS450 |
| 槽宽(mm) |
200
|
250 |
310 |
200 |
200 |
| 输送能力(m3/h) |
2-5 |
4-8 |
6-12
|
2-5
|
2-5 |
| 链速(m/min) |
2.4-4 |
2.4-4 |
2.4-4 |
2.4-4 |
2.4-4 |
| 链条节距(mm) |
152.4 |
152.4 |
152.4 |
152.4 |
152.4 |
| 输送距离(m) |
5-60 |
6-60 |
6-60 |
5-60 |
5-60 |
| 输送斜度(°) |
≤15 |
| 电机功率(KW) |
1.5-5.5 |
1.5-7.5 |
2.2-11 |
3-11 |
4-15
|
| 驱动装置安装型式 |
左右装,背装式 |
| 传动型式 |
链传动 |
| 适用粒度(mm) |
<5 |
<8 |
<12 |
<15 |
<20 |
| 适用湿度(%) |
≤15 |
| 适用温度(℃) |
≤150 |
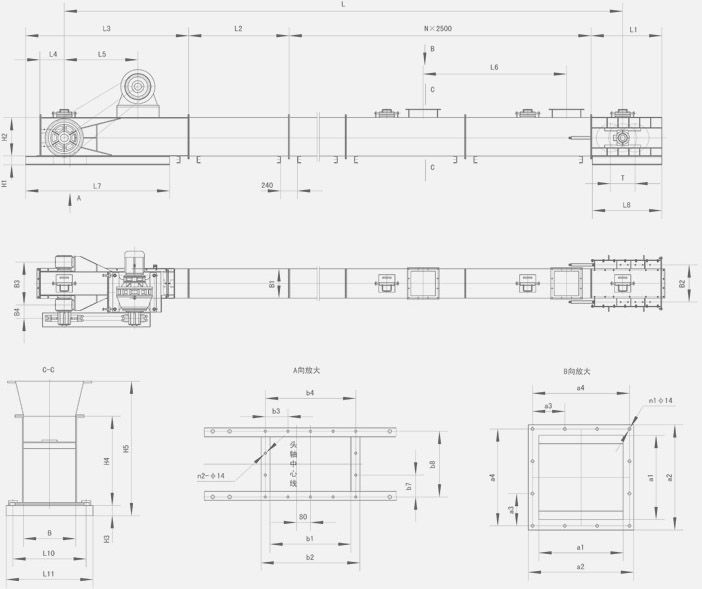
外形尺寸及连接尺寸
|
型号
|
HS200 |
HS250 |
HS310 |
HS400 |
HS450 |
|
结
构
尺
寸
|
L1 |
1000 |
1000 |
1000 |
1500 |
1500 |
| L2 |
调整段长度视具体要求定 |
L3
|
2120 |
2120 |
2120 |
2500 |
2500 |
| L4 |
340 |
340 |
340 |
500 |
500 |
| L5 |
1000 |
1000 |
1000 |
1120 |
1120 |
| L6 |
根据工艺需要设计确定 |
| H1 |
120 |
120 |
120 |
120 |
120 |
| H2 |
545 |
545 |
545 |
840 |
840 |
| H3 |
120 |
120 |
120 |
120 |
120 |
| H4 |
545 |
545 |
545 |
650 |
650 |
| H5 |
795-845 |
795-845 |
795-845 |
950-1000 |
950-1000 |
| B |
200 |
250 |
310 |
400
|
450 |
| B1 |
320 |
370 |
430 |
520 |
570 |
| B2 |
410 |
470 |
530 |
690 |
740 |
| B3 |
500 |
550 |
610 |
700 |
750 |
| T |
250 |
250 |
250 |
320 |
320 |
| T1 |
350 |
350 |
350 |
590 |
590 |
| n |
根据工艺需要设计确定 |
|
进
料
口
|
a1 |
200 |
300 |
350
|
400 |
400 |
| a2 |
300 |
400 |
450
|
500 |
500 |
| a3 |
130 |
180 |
135、140、135 |
150 |
150 |
| a4 |
260 |
360 |
410 |
460 |
460 |
| n1 |
8
|
8 |
12 |
16 |
16 |
|
出
料
口
|
b1 |
480 |
480 |
480 |
480 |
480 |
| b2 |
576 |
576 |
576 |
576 |
576 |
| b3 |
134 |
134 |
134 |
134 |
134 |
| b4 |
536 |
536 |
536 |
536 |
536 |
| b5 |
210 |
260 |
320 |
400 |
450 |
| b6 |
306 |
356 |
426 |
508 |
558 |
| b7 |
133 |
157.5 |
130 |
102.5 |
127.5 |
| b8 |
266 |
315 |
290 |
460 |
510 |
| n2 |
12 |
12 |
14 |
16 |
16 |
|
安
装
尺
寸
|
L7 |
1750 |
1750 |
1750 |
2000 |
2000 |
| L8 |
950 |
950 |
950 |
1425 |
1425 |
| L10 |
320 |
370 |
430 |
520 |
570 |
| L11 |
370 |
420 |
480 |
570 |
620 |
| n3 |
根据工艺需要设计确定 |
外形尺寸图

|