
概况
XFW物料旋转阀,是我公司技术部门会同有关科研院所及使用单位,参照瑞士布勒公司和日本细川公司粉体给料机的外型结构、有关技术参数,并按我国原化工部、机械部的有关标准,开发设计而成的一种新型给料设备,尤为适用于石油、化工、医药等行业易燃、易爆场合干燥粉状和小颗粒物料的喂送。
特点
进出料口按原化工部HG20593-97标准标准法兰设计,便于设计和使用单位选用(特殊场合,可按用户要求确定)。
机体左右法兰与轴之间采用德国“BASF”公司的密封形式、密封严密可靠,极细的物料也不会泄漏。
带有压力平衡装置,可用在正、负压输送等场合。
叶轮有“一”字形、“V”字形、“U”字形等形式,并设计成可拆式,当使用过程中产生叶轮粘料而影响工作或变更物料性质时,很方便地拆卸、清洗。
整机采用直联或链传整体式,精致、轻巧,驱动装置无需另设安装基础,减少占用空间、节省费用。
可采用铸铁、铸钢、不锈钢、钛钢等多种结构形式、满足用户不同场合的需求。
基本参数
| 型号 |
XFW100 |
XFW150 |
XFW200 |
XFW250 |
| 链轮式 |
直连式 |
链轮式 |
直连式 |
链轮式 |
直连式 |
链轮式 |
直连式 |
| 生产能力m3/h |
0.5 |
1.0 |
0.8 |
1.6 |
2.6 |
5.2 |
6.6 |
13.3 |
| 叶轮转速r/min |
16.3 |
32.3 |
16.3 |
32.3 |
16.4 |
32.5 |
16.4 |
32.5 |
| 叶轮直径mm |
Φ100 |
Φ150 |
Φ200 |
Φ250 |
| 减速机 |
功率 |
0.55-0.75kw |
1.1kw |
| 型号 |
BWY或BLY |
| 型号 |
XFW300 |
XFW350 |
XFW400 |
XFW500 |
| 链轮式 |
直连式 |
链轮式 |
直连式 |
链轮式 |
直连式 |
链轮式 |
直连式 |
| 生产能力m3/h |
10.5 |
21 |
18.6 |
32.3 |
23.6 |
47.3 |
39.4 |
78.8 |
| 叶轮转速r/min |
16.3 |
32.3 |
16.3 |
32.3 |
16.4 |
32.5 |
16.4 |
32.5 |
| 叶轮直径mm |
Φ300 |
Φ350 |
Φ400 |
Φ500 |
| 减速机 |
功率 |
1.1kw |
2.2kw |
| 型号 |
BWY或BLY |
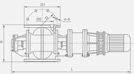
外形安装尺寸
直联式:
| 型号 |
L |
H |
D |
D0
|
D1 |
n×d |
| XFW120 |
1019 |
250 |
210 |
130 |
220 |
8×18 |
| XFW150 |
1049 |
290 |
240 |
160 |
285 |
8×22 |
| XFW200 |
1151 |
350 |
295
|
220 |
340
|
8×22 |
| XFW250 |
1201 |
420 |
350 |
270 |
395 |
12×22 |
| XFW300 |
1270 |
500 |
400 |
320 |
445 |
12×22 |
| XFW350 |
1330 |
550 |
460 |
375 |
505 |
16×22 |
| XFW400 |
1442 |
630 |
515 |
425 |
565 |
16×26 |
| XFW500 |
1542 |
750 |
620 |
530 |
670 |
20×26 |

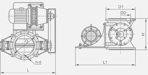
链轮式:
| 型号 |
L |
L1 |
H |
D |
D0
|
D1 |
n×d |
| XFW120 |
500 |
460 |
250 |
210 |
130 |
220 |
8×18 |
| XFW150 |
550 |
505 |
290 |
240 |
160 |
285 |
8×22 |
| XFW200 |
665 |
705 |
350 |
295 |
220 |
340 |
8×22 |
| XFW250 |
745 |
810 |
420 |
350 |
270 |
395 |
12×22 |
| XFW300 |
800 |
850 |
500 |
400
|
320 |
445 |
12×22 |
| XFW350 |
880 |
885 |
550 |
460 |
375 |
505 |
16×22 |
| XFW400 |
920 |
925 |
630 |
515 |
425 |
565 |
16×26 |
| XFW500 |
1020 |
1025 |
750 |
620 |
530 |
670 |
20×26 |

|